


This project was started in 2016 and we have been praying and working very hard to make it possible! It has taken a lot of faith but also we have all had to be in a position of helping to make the vision that god has given us manifest.
God gave us the vision to make tramwaycf more active in the community and we are answering the call.
TramwayCF is a tower in the borough of Enfield, with the goal of shining the bright light of the gospel of Jesus Christ to all that are in it.
It is clear, and all you have to do is read the newspapers or switch on the tv and see that Enfield is a very challenging place to live and work in. But the aim of a lighthouse is to shine it’s light in an important or dangerous place not where it is already safe!
So tramwaycf will shine light for a few purposes.
One purpose of a lighthouse is to serve as a navigational aid!
We want to point our friends, family and the community we are in to Jesus Christ who is the hope that we all need! Only through him will we be saved, only through him the borough will be changed for the best including the community within it!
The second purpose of a lighthouse is to show where there is land, good safe soil to those who are a distance away, lost maybe, struggling, almost shipwrecked. Tramwaycf wants to be a lighthouse in a harbour, where shelter can be found.
Tramwaycf aims to be a light house on good soil, planted on firm foundation, the rock, the word of god reaching those around us, and bringing them to the one who brings peace, deliverance and hope.
OUR FUNDRAISING EFFORTS ARE DAILY...!
UPDATE
BUILDING WORK HAS BEGUN!
WEEKS COMPLETED:
WEEK 1 (11.03.19 - 17.03.19)
Initial setup
WEEK 2 (18.03.19 - 24.03.19)
Stripping down and ground floor foundation pits
WEEK 3 (25.03.19 - 31.03.19)
Ground floor foundation pits and further stripping down of ceiling
WEEK 4 (01.04.19 - 07.04.19)
Removal of electrics, wiring and ceiling
WEEK 5 (08.04.19 - 14.04.19)
New ground floor flooring and filling in of foundation holes/pits with concrete
WEEK 6 (15.04.19 - 21.04.19)
Further exploration work and completion of flooring
WEEK 7 & 8 (22.04.19 - 05.05.19)
No work completed during this period as a number of issues with the floor although many planning meetings took place
WEEK 9 (06.05.19)
Complete removal of all joists on the first floor and further stripping out
Week 10 (13.05.19 - 19.05.19)
Steel preparation, painting and installation of new joists
Week 11 ( 20.05.19 - 26.05.19)
New flooring installation over new joists and formation of new fire exit platform. Also basic installation of new staircase.
Week 12 ( 27.05.19 - 02.06.19)
Completion of internal staircase, existing external fire exit door removed and filled in, new fire exit door in external wall opened up, 87 % completion of the 1st floor flooring, and electrical wiring.
Week 13 (03.06.19 - 09.06.19)
New partition built that separates the nursery to the building site area. Completion of the rest of 1st floor flooring and installation of new electrical box. Formation of 1st floor fire exit staircase area and three steps located at new first floor fire exit door.
Week 14 (10.06.19 - 16.06.19)
Preparation of wood work and doors that will be installed after partition work has been completed on ground floor and 1st floor. Delivery of glass and other building components. 1st floor partition erected to make a new corridor around the lift shaft.
Week 15 (17.06.19 - 23.06.19)
1st floor partition roof installed and windows cut out, new double door positioned, and numerous partition panels placed. Electrical wiring and installation of the smoke/heat sensors, emergency lighting and main lighting.
Week 16 (24.06.19 - 30.06.19)
Partitioning of the beams/metal work that go across the ceiling of the ground floor. Partition of the internal staircase and new partition on ground floor to make ground floor corridor.
Week 17 (01.07.19 - 07.07.19)
The rear fire exit area was excavated, the astro-turf in the rear garden was taken up and fencing erected to protect the children's play area. Ground floor partition and ground floor and 1st floor electrical wiring of the main lights and some floor boxes.
Week 18 (08.07.19 - 14.07.19)
The rear fire exit foundation pit was dug and lift pit work was completed to raise to the required level. This was filled with cement.
Week 19 (15.07.19 - 21.07.19)
All glass work completed and ground floor double doors hanged. Rear fire escape delivered and secured in location.
PICTURES
PLANNING PERMISSION WAS APPLIED FOR AND GRANTED BY ENFIELD COUNCIL...

BUILDING PROJECT WILL BE COMPLETED IN
TWO PHASES
DUE TO THE FINANCIAL IMPLICATIONS OF SUCH A BIG PROJECT WE HAVE DECIDED TO COMPLETE THE PROJECT IN TWO PHASES


Currently we are on Phase one of the building project at TramwayCF
This work has now started and should be completed at the end of July 2019.
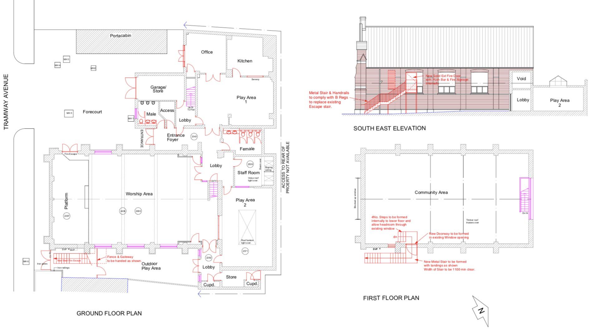
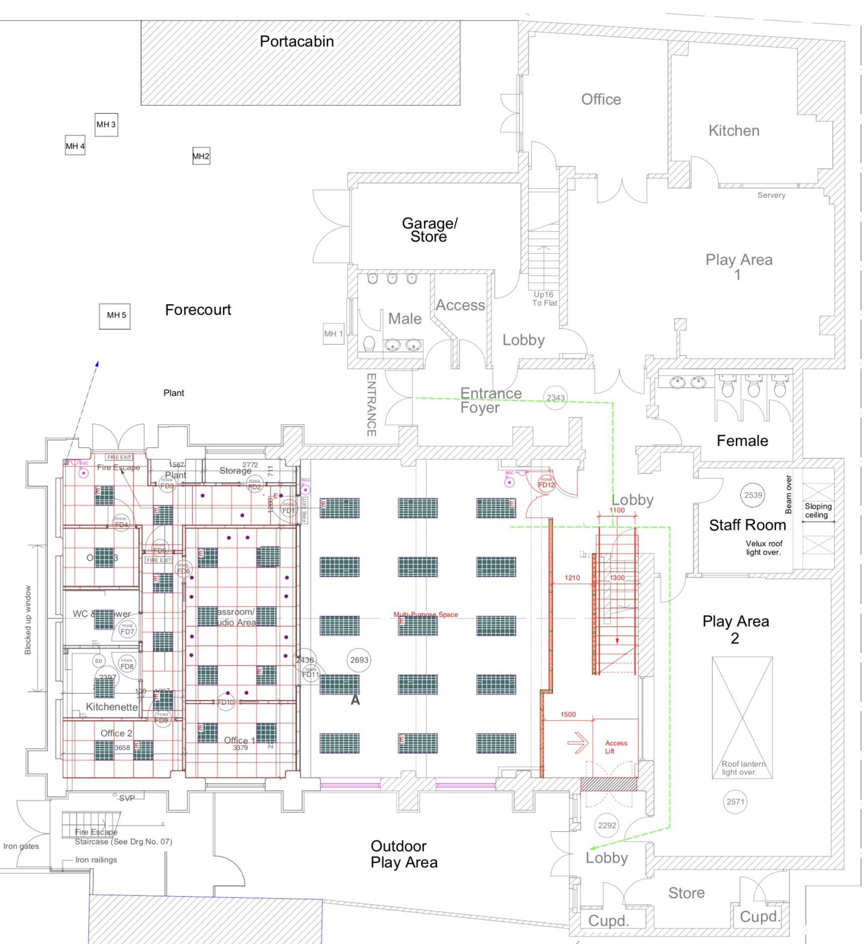
PHASE ONE INCLUDES;
Structurally supporting the first floor of the building
Re-doing the electrics in the building to bring it into this century and make it safe!
Installing a New fire exit
Installing a New stair case to first floor
Installing new lighting on ground floor and first floor
Digging and supporting a lift access pit
Building partitions to meet with health and safety regulations
PHASE TWO INCLUDES;
The complete move of the main hall to the first floor
New partitions on first floor
Installation of stage, sound desk area and equipment
Installation of the access lift
New offices
New music studio
New classroom
New ground floor toilet, disabled toilet and shower
New kitchenette
New purpose built youth space


PHASE TWO!!!
Music is So POWERFUL..
Who doesn't like music??! It is such a powerful tool and has proven so influential in our youth culture today!! Stats show that young people deem it their favourite pastime, equal to gaming and ahead of sport, drama, dancing, and arts & crafts!! At Tramway Christian Fellowship we believe in our young people and boy are they vocally & musically gifted!! We want to nurture these abilities by building a Music School fully equipped with a state of the art studio, sound, PA and musical instruments!! We want to encourage our young people to be the best that they can be and to be inspired to inspire others through their love for music!
"With a New Music School we can provide a platform for inspiring our young people in the local community, taking them off the streets where gun & knife crime roam - Help us keep our young people safe!"
HELP US TO INVEST IN OUR FUTURE - OUR YOUNG PEOPLE!!

